Project
curtis coffee
Status
completed in
2022. 04
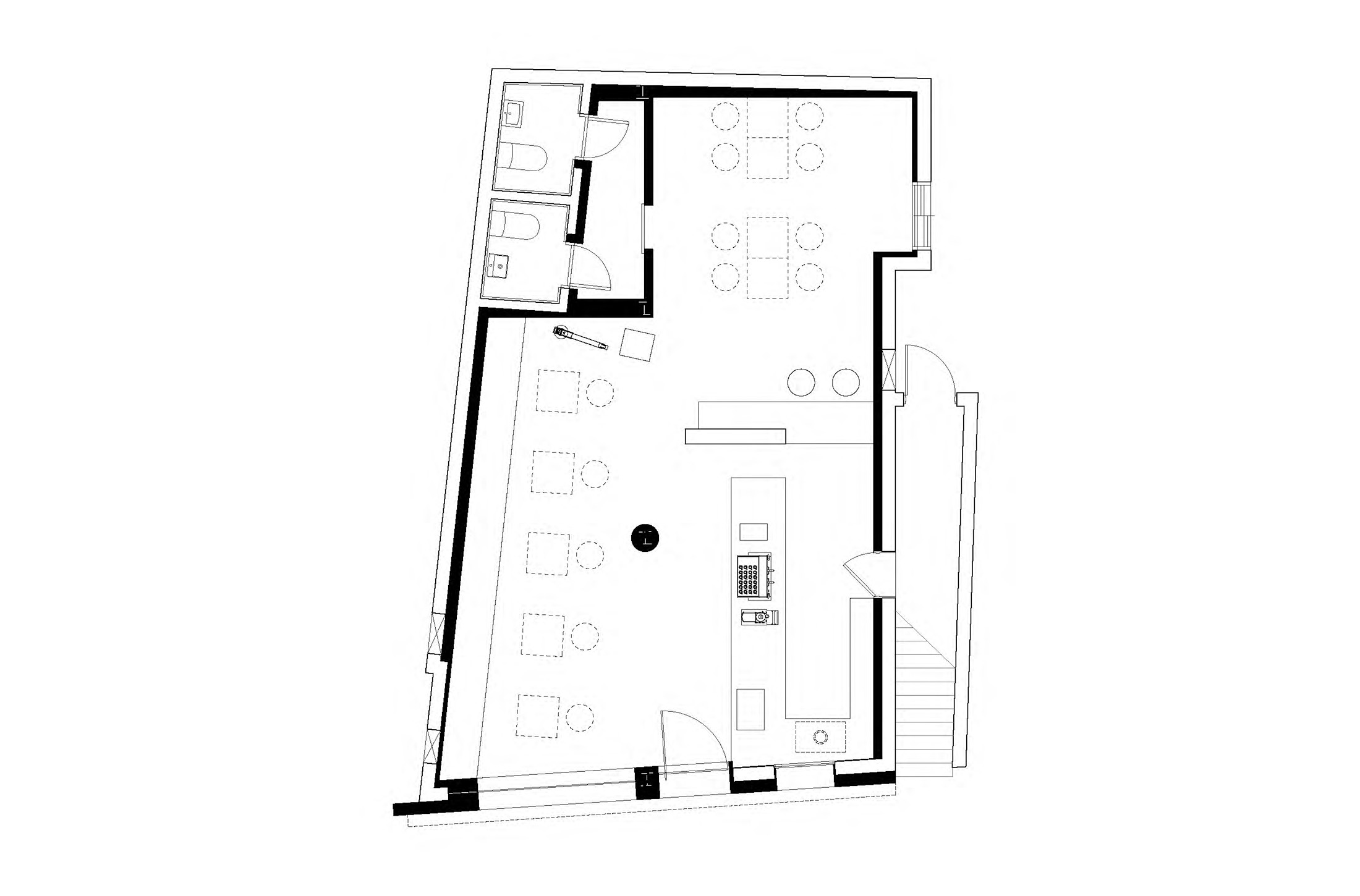
Program
coffee
Gross Floor area
62.7m2
Location
Cheongpa-dong, Yongsan-gu, seoul
Client
private
Photography
jeffclaymulborough
soje















︎︎︎