Project
대학로 파랑새 극장
리모델링
parangsae theater
Status
completed in 2019
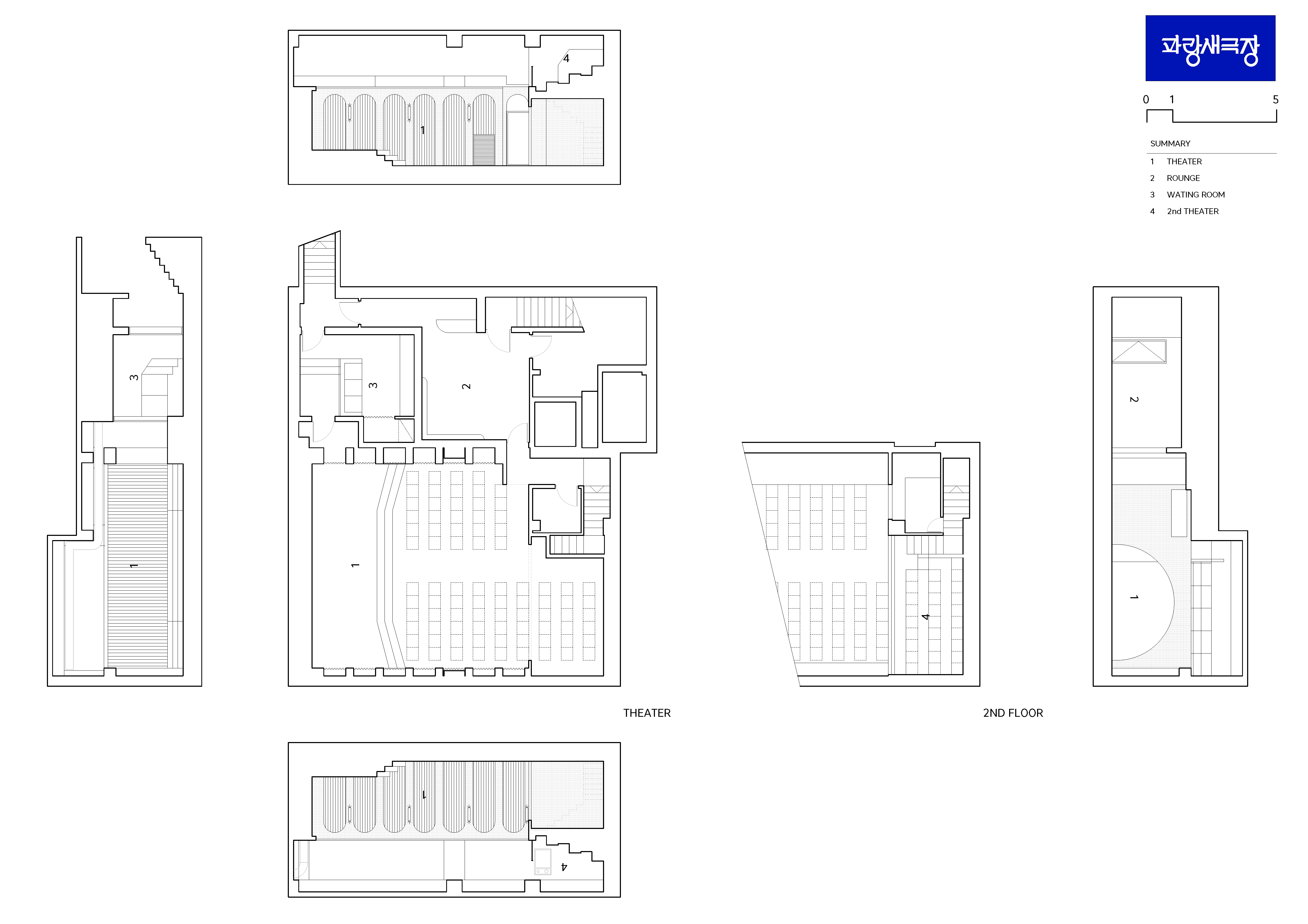
Program
theater + music hall
Gross Floor area
158m2
Location
116, daehakro, jongno-gu, seoul
Client
00 ground
Photography
soje
Collaborator
hyun hyun, jung a-yoon(graphic)








︎︎︎